Каретка ТШПМ-2,0 (2,5) без опоры в Петрозаводске

Изготовим
под заказ
Цена с НДС на каретка ТШПМ-2,0 (2,5) без опоры с доставкой в
от 0 рублей
Условия в
В наличии на складе
Доставка ТК по России и Казахстану
Безналичный расчет
Каретка в сборе ТШПМ 2.0 (2.5)
Каретка в сборе ТШПМ-2.0 (2.5)
Каретка в сборе ТШПМ 2.0 (2.5)
Видеообзор
Технические
характеристики
Описание
товара
Сертификаты
и гарантии

Технические характеристики

Тип оборудования Топка ТШПМ
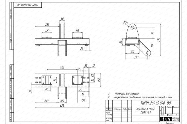
Каретка ТШПМ 2.0 чертеж
Чертеж каретки ТШПМ 2.0

Купить каретку ТШПМ-2,0 (2,5) без опоры

Для того, чтобы купить каретку ТШПМ-2,0 (2,5) без опоры вы можете сделать заявку в отдел сбыта по телефону 8-800-700-06-43, либо оформить заказ он-лайн. Инженеры-консультанты дадут консультацию и рассчитают стоимость доставки. Транспортирование запасных частей топки ТШПМ может осуществляться автотранспортом, ж/д полувагонами и речным транспортом.

Сертификаты и гарантии

Сертификат для топок
Сертификат на топки

Отзывы о продукции

Другая похожая продукция

878 000 ₽
1 900 ₽
Цена по
запросу
29 000 ₽
9 300 ₽